55kgタイプ■DAIWA 全自動製氷機 DRI-55LME アンダーカウンタータイプ 100V 1回の氷の数:49個 ダイワ キューブアイスメーカー 名古屋 併 收藏
拍卖号:1213344210
开始时间:12/22/2025 17:23:30
个 数:1
结束时间:12/25/2025 21:38:46
商品成色:二手
可否退货:不可
提前结束:可
日本邮费:买家承担
自动延长:可
最高出价:
出价次数:0

|
商品について | |
|
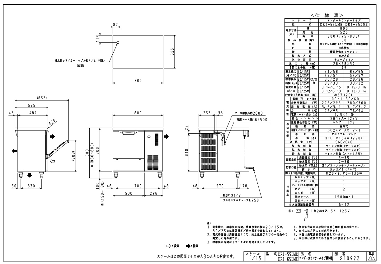
こちらは DAIWA 全自動製氷機 DRI-55LME です。 中古品となります。 DAIWA 全自動製氷機 DRI-55LME DAIWA(大和冷機工業)の全自動製氷機「DRI-55LME」は、日産約55kgのキューブアイスを安定供給できるアンダーカウンター型製氷機です。 中規模店舗やバーに最適なモデルです。 天板は作業台としてお使いいただけます。 ■アンダーカウンタータイプ 高さ800mm設計で、コールドテーブルや作業台とラインを揃えやすく、厨房の効率化に貢献。 ■安定した製氷能力 最大55kg/日で、中規模の居酒屋やバー、レストランに十分対応。 ■高品質な氷 透明度の高いキューブアイスは、ドリンクの見栄えや味を損なわず提供可能。 ■安全設計 給排水配管が標準仕様で、厨房環境に合わせた設置が容易。 【 コンディション 】 多少の使用感はありますが、比較的状態はよく、使用には問題のないお品です。 動作確認済となります。 また、こちらのお品は 再良市場 守山本店(名古屋市守山区大森5丁目3010番地)にて店頭展示しております。 現物を確認してみたい方は、是非、再良市場 守山本店にお越しください。 この機会にいかがでしょうか。 皆様のご入札をお待ちしております! 再良市場の他のお品物はこちらから!
■電源 単相100V 1φ 50/60Hz ■消費電力 275/295W(50/60HZ) ■製氷能力 54/58kg/日(室温20℃ 水温15℃) 47/51kg/日(室温30℃ 水温25℃) ■貯氷量 約27(20)kg ■1回の氷の数 49個 ■外形寸法 幅800mm×奥行525mm×高さ800mm ■適合コンセント 2極差込15A-125V ■給水配管 給水口G1/2フレキシブルチューブ ■排水配管 排水口Rp3/4(メネジ) ■圧縮機出力 175(レシプロ) ■冷媒 R134a(220) ■製品質量 約60kg ■製造年 2013年 ■付属品 氷スコップ、ホース 画像のもののみとなります。 ![]() ■備考 再良市場 守山本店(名古屋市守山区大森5丁目3010番地)にて店頭展示中。
| ||||||||||||||||||||||||||||||||||||||||||||||||||
| 出价者 | 信用 | 价格 | 时间 |
|---|
推荐