您好,欢迎来到日本购物网! 请登录 免费注册 [帮助中心]
8:30-12:00/13:00-18:30
400-668-2606
IHクッキングヒーター★電磁調理器★日立HT-C10TS★大火力3口★オールメタル対応★光&温度センサー★音声ガイド★ビルトイン【送料無料】
IHクッキングヒーター★電磁調理器★日立HT-C10TS★大火力3口★オールメタル対応★光&温度センサー★音声ガイド★ビルトイン【送料無料】 [浏览原始页面]
当前价:152400 日元(合7330.44人民币)

加价单位:0 日元/0.00 人民币

一口价:152400 日元 合 7330.44 人民币
当前最高出价者: 出价次数:0
距结束:
32118.4806753
手动刷新
升级包月会员,免预付款出价! 《会员制说明》
卖方资料

卖家账号:Netshop Tiara

卖家评价:好评:200 差评:2

店铺卖家:不是

发货地址:埼玉県

商品信息

拍卖号:r1208430638

结束时间:11/23/2025 20:13:14

日本邮费:卖家承担

可否退货:不可

开始时间:11/19/2025 17:13:43

商品成色:新品

自动延长:可

个 数:1

提前结束:可

最高出价:

拍卖注意事项

1、【自动延长】:如果在结束前5分钟内有人出价,为了让其他竞拍者有时间思考,结束时间可延长5分钟。

2、【提前结束】:卖家觉得达到了心理价位,即使未到结束时间,也可以提前结束。

3、参考翻译由网络自动提供,仅供参考,不保证翻译内容的正确性。如有不明,请咨询客服。

4、本站为日拍、代拍平台,商品的品质和卖家的信誉需要您自己判断。请谨慎出价,竞价成功后订单将不能取消。

5、违反中国法律、无法邮寄的商品(注:象牙是违禁品,受《濒临绝种野生动植物国际贸易公约》保护),本站不予代购。

6、邮政国际包裹禁运的危险品,邮政渠道不能发送到日本境外(详情请点击), 如需发送到日本境外请自行联系渠道。

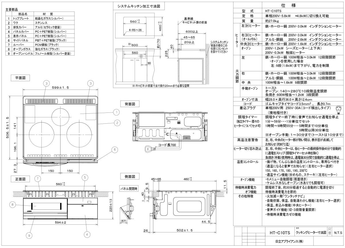
IHクッキングヒーター★日立HT-C10TS★大火力3IH★オールメタル対応(右IH)
光&温度センサー★音声ガイド搭載ビルトインタイプ★シルバー【送料無料】
 
<メーカー梱包のまま出荷致します>
 
  大火力 3口IHオールメタル対応(右IH)
  アルミ・銅鍋2.6kW(右IH)/鉄・ステンレス鍋3.0kW(左右IH)/1.6kW(中央IH)
(鍋の形状・重さによっては、自動的に火力が弱くなる場合があります)
  匠の火加減「光&4温度センサー」
  3口IH<すべて上面操作(ガラスタッチ)>
  火加減一発「ワンタッチナビ」
  「音声ガイド」搭載
  ワイド&ビックオーブン
  10段階オーブン温度設定
  水なし自動七輪交互焼き
 
【サイズ】 横幅 約59.9cm×奥行 約55.9cm×高さ 約23.15cm
 
【重量】 27kg
 
【消費電力】単相200V-5.8kW
 
【その他】工場出荷時は5.8kWですが、4.8kWに切り換え可能。
プラグ単相200V 30A(接地極つき)
 
 
★★★ご覧下さいまして、感謝しております★★★
 
【ヤフーオークション以外にも出品しています。万が一、商品売り切れの場合には、ご容赦下さい】
出价者 信用 价格 时间
推荐
地址: 205-0023 東京都羽村市神明台
国内客服电话:400-668-2606
E-mail:gouwujp@gmail.com
//