您好,欢迎来到日本购物网! 请登录 免费注册 [帮助中心]
8:30-12:00/13:00-18:30
400-668-2606
■【DIY】YKKAP製 アルミサッシ 勝手口片引戸【内付型】 W1900×2000H(19020)
■【DIY】YKKAP製 アルミサッシ 勝手口片引戸【内付型】 W1900×2000H(19020) [浏览原始页面]
当前价:41182 日元(合1984.97人民币/含税价2183.47 人民币 )

加价单位:0 日元/0.00 人民币

一口价:41273 日元 合 1989.36 人民币
当前最高出价者: 出价次数:0
距结束:
337663.8687515
手动刷新
升级包月会员,免预付款出价! 《会员制说明》
卖方资料

卖家账号:diy********

卖家评价:好评:2363 差评:9

店铺卖家:是(公司卖家)

发货地址:大分県

该卖家需加收[10%]消费税!
商品信息

拍卖号:h1207509463

结束时间:11/25/2025 21:05:15

日本邮费:买家承担

可否退货:不可

开始时间:11/18/2025 22:05:15

商品成色:新品

自动延长:可

个 数:5

提前结束:可

最高出价:

拍卖注意事项

1、【自动延长】:如果在结束前5分钟内有人出价,为了让其他竞拍者有时间思考,结束时间可延长5分钟。

2、【提前结束】:卖家觉得达到了心理价位,即使未到结束时间,也可以提前结束。

3、参考翻译由网络自动提供,仅供参考,不保证翻译内容的正确性。如有不明,请咨询客服。

4、本站为日拍、代拍平台,商品的品质和卖家的信誉需要您自己判断。请谨慎出价,竞价成功后订单将不能取消。

5、违反中国法律、无法邮寄的商品(注:象牙是违禁品,受《濒临绝种野生动植物国际贸易公约》保护),本站不予代购。

6、邮政国际包裹禁运的危险品,邮政渠道不能发送到日本境外(详情请点击), 如需发送到日本境外请自行联系渠道。


商品説明
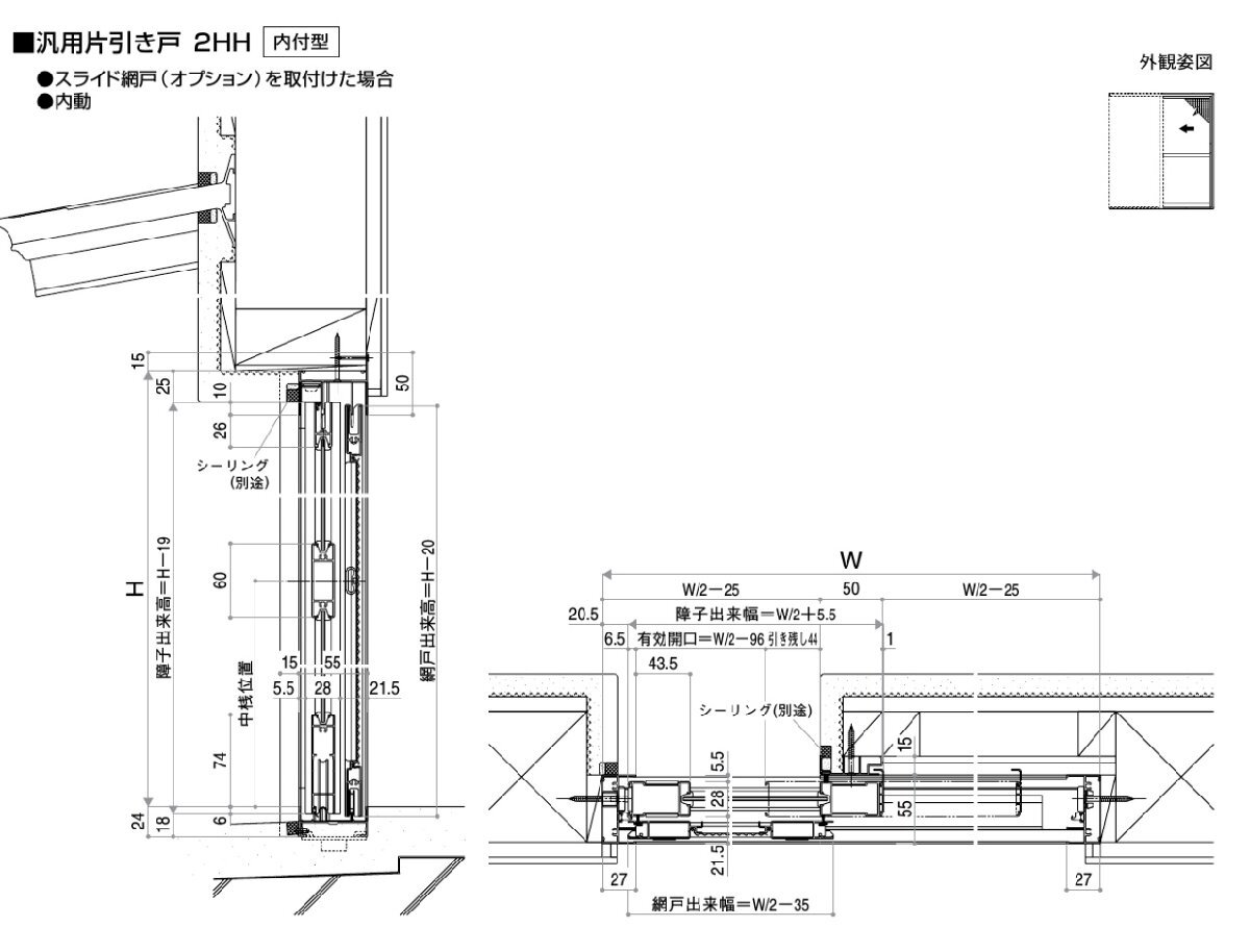
■【商品名】アルミサッシ 汎用 勝手口片引戸 2HHシリーズ仕様
■【メーカー】YKKAP株式会社 ★
■【寸法】題名記載寸法

■【色】 写真3ページ目の表示色より枠・本体色お選び頂けます。
■【商品内容】
①アングル無枠(ノックダウン出荷) ②本体となります

①標準鍵 3本装備 内部 上げ下げ錠仕様
②取付ビスセット ※部品箱セットにてお届け致します。

※納まりは下記サイトP134~をご覧下さい。

【【オプション】】

▼網戸(中桟付 ブラックネット)追加→+¥12,500円追加で変更致します。
▼ガラス→パネル変更 下のみ→+2,000円、 上下→+4,000円追加となります

■住宅サッシメーカー 信頼の【ykkap製】

■納まりやご使用方法 などに関する御質問はこちらより

■注文後のキャンセル・返品・交換等には応じられません。

■送料はこちらからご確認下さい。

この商品は【C】送料となります。
また複数セットでの送料掲載しております。

支払方法
■銀行振込 楽天銀行・Paypay銀行
■郵便振替 ゆうちょ銀行
■!かんたん決済 かんたん決済
※代引決済は不可となります。

注意事項
■出荷までには決済終了後、土日祝除く5日~6日ほどかかります。
(在庫や交通状況の関係上、納期が遅れる場合もございます)
■出荷日や問い合わせ番号につきましては後日ご連絡いたします。
■梱包料軽減の為、簡易包装となります
■落札後、下記項目のご連絡お願いします

●落札後のご連絡事項●
①発送先 御氏名、御住所、携帯お電話番号
②枠・フレーム・本体色
③吊り元 外観 右丁番・左丁番
④オプションの有無(ドアクローザ 有 無など)
出价者 信用 价格 时间
推荐
地址: 205-0023 東京都羽村市神明台
国内客服电话:400-668-2606
E-mail:gouwujp@gmail.com
//